丽喜花园100平米新中式
2019-04-10 20:27:18 查看人数 1500
案例面积:100㎡
案例户型:二居室
装修造价:约16万
案例风格:新中式
要了解新中式风格的设计思路以及新中式风格要求不妨来看看中式设计风格的定义,新中式风格是从功能、美学、文化、技术等方面认真研究与推敲出来的,并且将这些元素进行了改造,来适应现代人的审美情趣与生活理念,使得这些元素在运用上,具有简约、时尚、流行、不拘一格的现代气息,同时具有中国传统文化的古典韵味。
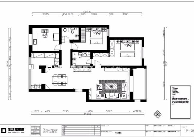
户型图
新中式风格,作为传统中式家居风格的现代生活理念,通过提取传统家居的精华元素和生活符号进行合理的搭配、布局,在整体的家居设计中既有中式家居的传统韵味又更多的符合了现代人居住的生活特点,让古典与现代完美结合,传统与时尚并存。
客厅
新中式风格的设计思路以及新中式风格要求不妨来看看中式设计风格的定义,新中式风格是从功能、美学、文化、技术等方面认真研究与推敲出来的,客厅运用了板材护墙板与石材的使用更加体现了中式山水石材文化。
餐厅
餐厅设计,迎合了中式家具追求内敛、质朴的设计风格,更加实用、更富现代感。
过道
实木的玄关柜顶面回型灯池吊顶相结合,空间使用更加合理。
