西马金润87平米简欧设计
2019-04-10 20:37:13 查看人数 1655
案例面积:87㎡
案例户型:二居室
装修造价:约15万
案例风格:新中式
简欧风格想保留的并不是欧式的奢华,而是通过简单的变形的直线与曲线相互作用与装饰工艺手段的运用让室内去繁存简,保留欧式的柔美与浪漫,其结构简单实用,建筑结构之间体现内装修风格,没有过多的造型装饰。
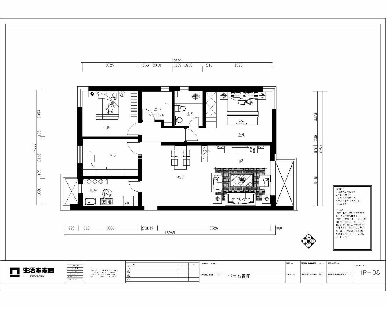
户型图
简欧风格就是简化了的欧式装修风格。简欧风格更多的表现为实用性和多元化。简欧家具包括床、电视柜、书柜、衣柜、橱柜等等都与众不同,营造出日常居家不同的感觉。
客厅
墙面用素色色调墙纸突出业主需要的简练气息。方桌是业主特意强调的需求,在餐厅客厅空间合理划分运用了欧式石膏顶线墙线造型来区分,和体现了欧式的温馨感。
卧室
儿童房(次卧):孩子是个男孩,定制已给处理空间使用率的问题,这个卧室在蓝色色彩搭配,干净简洁,让满屋生气勃勃。 主卧室:卧室是墙面欧式主用太阳线和墙线修饰,色彩格调温暖舒适,运用了大马士革的布面来处理,更加协调与温馨。
厨房
厨房用了欧式花梨色木制来结合整个空间,砖运用了大理石上墙,配备了置物架。
卫生间
卫生间运用了地砖上墙的砖,大气整洁,使用功能合理规划。
书房
书房比较简洁,墨蓝色的搭配配合了客户原有家具,更加协调。
