永泰泰禾红峪130m² 简欧风格
2019-10-22 15:44:42 查看人数 1974
案例面积:130㎡
案例户型:三居室
装修造价:约25万
案例风格:简欧
简欧风格其实就是简化了欧式风格的装修,简欧风格更多的表现为实用性,简欧家具、电视柜、书柜、衣柜、电视柜都与众不同。给人日常居家不同的感觉。本案设计以典雅、自然、高贵的气质为主题,空间得到充分利用,整体让人感觉舒适、安静。
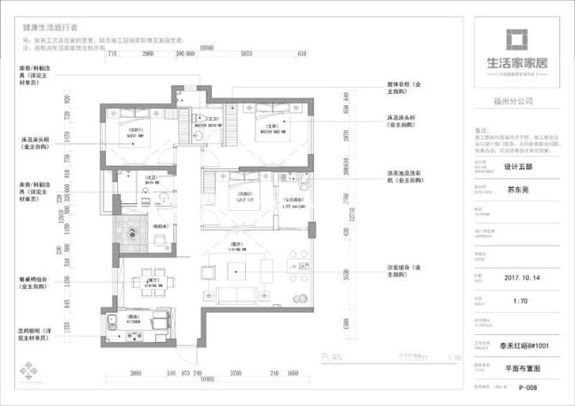
户型图
该户型较为方正,户型有多处飘窗,若是不做他用可将他拆除,我们还可以将小阳台的墙体拆除并入之后可与内部承重墙形成一个小房间,可做书房也可做多功能房,如果觉得客厅太小,亦可以将客厅阳台并入客厅,使空间变得宽大,客餐厅一线连接,视觉空间感增长,亦增加了采光,其余空间布局可进行合理小范围改动。
客厅
客厅业主需要温馨,光感充足,整体喜欢欧式但要加点时尚的味道,在家具上,沙发选择皮质枪灰色系,显得既有质感又时尚,浅绿色的硬包做背景,简约的金属线条加点缀,给客厅一线生机。
餐厅
客餐厅纵横一线,使整个空间光线充足,通风顺畅。餐厅最舒服,宽敞明亮,不设计餐边柜,备餐柜 ,给餐厅留了很大的活动空间,灰色的餐椅与灰色的墙面相呼应,满足了三代人的用餐空间。
