水岸君山82m² 现代简约风格
2019-10-23 14:45:50 查看人数 2040
案例面积:82㎡
案例户型:三居室
装修造价:约17万
案例风格:现代
时代赋予了众多选择易让人迷失,设计师既是观察者,旁观和记录着生活,也是创造者。 从入门开始,地面铺设的是诺森阿卡特橡木,铺地板范围直接延伸到卧室、餐厅、客厅,让这些活动区的空间连贯起来,动区与静区明确分开,融入大自然,半开放式的厨房让整个动区更开阔,厨房的墙面用的浅灰的墙砖,提高档次。
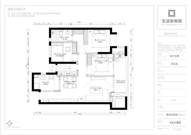
户型图
活动区与休息区明确分开,休息去相对集中。房间之间相互联系方便。厅、卧室均有良好的朝向和穿堂风。自然采光条件好,在晴朗的天气下,白天无需开灯。房间布局动线合理,房间大小适中。
客厅
客厅采用了浅灰色的墙面,米色亚麻沙发,深灰色抱枕,略显低调的颜色,由灰色调的蓝色与粉色来点亮客厅空间,特别是沙发背后的那三幅的挂画,提升了空间的格调,大理石茶几与餐厅相呼应,墙上的圆形灯带、茶几上的托盘、几何图案地毯都点缀了客厅空间,原木与白色电视柜、黑色的电视,颜色的深浅变化,使灰黑色也活跃了。
餐厅
如果说厨房为制造美食而生,餐厅就是分享美味的最佳空间。餐厅的气氛往往影响人的食欲,长方形大理石餐桌落落大方,平衡有加,搭配上艺术感十足的餐椅,考究的色彩,一种高贵从容,自然的情调弥漫在空气中。
