香开长龙 97m² 现代风格
2020-01-11 15:08:12 查看人数 1916
案例面积:97㎡
案例户型:三居室
装修造价:约20万
案例风格:现代
本套方案设计师采用现代简约的装修风格。现代简约是目前热门也比较主流的风格之一。本案设计整体突出现代风格的时尚感同时,使得整体风格保持了现代简约风格的时尚、简洁,采用灰色系让整体空间显得更加高级。营造一种温馨、安逸的环境氛围。
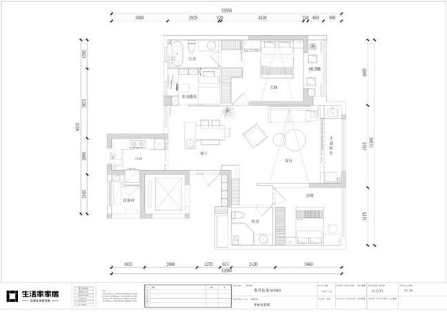
户型图
本案户型原结构是平层,套内面积约有97平,空间的利用率很高,整体空间方正通透,使得整体布局起来可以充分满足业主的需求。该户型南北通透,通风采光都极佳。最后出来的整体空间效果很清爽通透,空间动静线也变得更为人性化和合理化。
客厅
电视背景墙整面的灰色瓷砖墙面,配简约风灰色系的沙发简洁而又大方美观是整个客厅空间的设计亮点。配以沙发黑的背景墙让空间充满了大气简约的感觉。简单的吊顶造型,让空间层次感又进一步提升。沙发组合采用亚麻色布艺沙发,将客厅空间的高级高又进一步提升。
卧室
主卫门的设计为隐形门,主卫门采用是玻璃材质是卧室空间中设计的亮点之一。卧室床头背景墙采用了莫兰迪色系,搭配黑色系的窗更加突出卧室的温馨气息同时也营造一种健康的感觉。
餐厅
黑色大理石纹路的餐桌让餐厅和客厅更加协调的搭配显得。原木色简单的餐厅墙面,用一幅简单的挂画让空间又显得不会单调,黑色大理石的餐桌搭配纯色的餐凳,让整个餐厅空间更加显得有质感。
