金辉淮安·十六山房 136m² 美式轻奢风格
2020-01-11 15:36:40 查看人数 1362
案例面积:136㎡
案例户型:三居室
装修造价:约30万
案例风格:现代
美式装修风格明显,简约的线条和高贵的氛围,营造出自由舒适的家居氛围。美式风格色彩搭配之所以令人印象深刻,是因为它总能获得令人视觉舒服的效果——不用纯色而多使用中性色进行柔和过渡,即使用黑白灰营造强烈效果,也总有稳定空间的元素打破它的视觉膨胀感,比如用素色家具或中性色软装来压制。
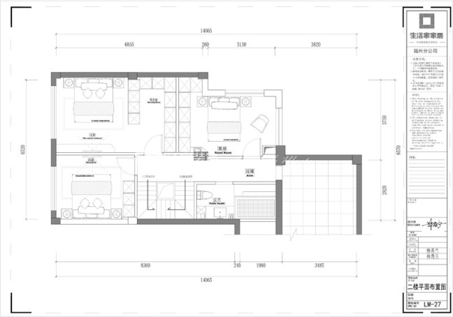
户型图
跟原始户型相对比所做出的改变就是把入口玄关处空间大,室内以及在客餐厅的区域设置了一个错层的巧思。满足客户对房子的规划的同时又呈现了作品的效果。而在客厅的设计中依照客户需求还在客厅落地窗中设置了书桌,实用与美观兼顾。
客厅
客厅吊顶添加了花纹修饰,顶部设计层次分明,石膏线吊顶在视觉上拉升了立体空间感知。整体设计摒弃了繁琐浮华,没有多余的装饰,而是以一种简约优雅的设计语言,结合对至臻材质的精彩运用,极力呈现出低调、奢华的空间力量。客厅以大面积的高级灰作为铺陈,是轻奢风格的最佳演绎。简约精致的石膏走线,仿木纹大理石,金色增加轻奢质感。沙发背景墙的色调则更为醒目一些,为客厅增加视觉焦点,彰显出一个富有质感的家居氛围。
卧室
主卧的床背景也做了护墙板的造型,中间的蓝色也与一楼的护墙板有一个呼应和延伸。用柜子来隔开更衣间,玻璃柜门的衣柜并不会让空间变得拥挤和压抑,反而增加了空间的质感,丰富了主卧的层次。现代的风格不可或缺的就是吊顶上的石膏线条了,两层的线条,在不影响层高的情况下还丰富了空间的层次感。
餐厅
餐边柜用白色加金色线条与墙体颜色统一,显得整体空间风格统一不杂乱。顶上的吊顶造型为了配合客厅的吊顶加了装饰线条,层层叠叠的吊顶虽然复杂但是放在客餐厅这块区域不显繁复。墙面上采用浅灰色的色漆来丰富空间,在一楼区域都是运用大块的色彩来装点空间,整体又协调。
