万达天樾95平现代轻奢
2020-04-11 14:42:17 查看人数 530
案例面积:95㎡
案例户型:二居室
装修造价:约12万
案例风格:轻奢
现代简约是由曲线和很多线条一起构成的,线条有的柔美雅致,有的又富有节奏感,整个立体形式都有条不紊,有节奏的曲线融为一体,使设计别有一番风味,目前很受现代人的喜爱。本设计在简约的同事又加以混搭,给空间注入新的元素,富有趣味性。希望可以让业主在忙碌工作了一天回到家里能够得到彻底的放松。
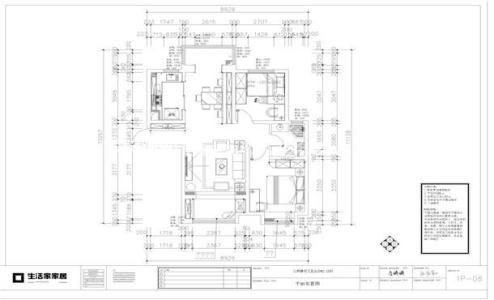
户型图
该原始户型为两室二厅一厨一卫的平层,朝南户型,整个房型区域比较规整,采光非常好,没有浪费的空间,业主希望在设计时满足风格要求,但又不显得传统。
客厅
简约不失简单,他是经过深思熟虑后经过创新得出的设计和思路的延展,不失简单的堆砌和平淡的摆放,它凝结着设计师的独具匠心,既美观又实用。如客厅中的沙发,虽然没有了欧式的华丽与繁琐,但是它的简单大方依然很美丽,并且这样的沙发可以做更多的人,满足了家里客人多的需求。
卧室
主卧室在硬装的颜色以灰色为主,业主想着卧室的色彩更为鲜明舒适点,但又不能颜色过于繁琐,所以后面选择了暖色系里的橙色为主要元素色,配色的窗帘将和硬装的色系一致选择天空蓝与灰色拼接,整个感觉会让卧室有了温馨舒适并且色彩看起来简单和谐。
次卧
设计根据小孩的天性来做整体的搭配布置。一个4岁小男孩,前期业主硬装的色彩都是以灰系为主的,在这个色彩上将小孩房的床头背景墙做了区分,用简单的几何图案来衬托整个空间的跳跃感,同时窗帘的色彩选择冷系蓝色为主点缀柠檬黄让空间多出一些调色,显得空间不会那么深沉,多了几分童趣的感觉。
