万象春天95平现代轻奢
2020-04-11 14:49:48 查看人数 1020
案例面积:95㎡
案例户型:三居室
装修造价:约13万
案例风格:轻奢
奢华設計的目的是生活享受这种享受除了满目所及的奢华视觉之外,满足于身心感受的奢华感也是至关重要的,在没有任何束缚和压力的环境中打造一片能够让身体完全放松又感到无比舒适的温馨环境。
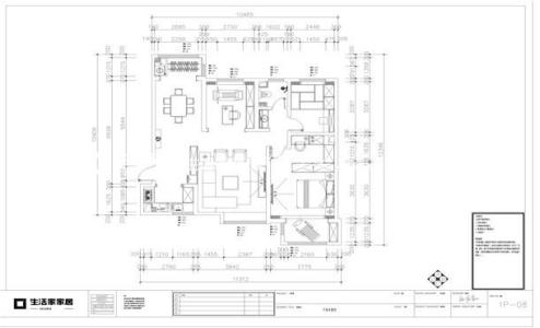
户型图
该原始户型为三室二厅一厨一卫的平层,南北户型,整个房型区域比较规整,采光非常好,没有浪费的空间,业主希望在设计时满足风格要求,但又不显得传统。
客厅
客厅中“奢华风格”,客厅选择头层牛皮的双人位沙发,配以墨绿色的点缀的单椅。想要达到的境界色彩上运用时下最流行的金属色调与光感呼应,高傲中带点忧郁的“墨绿”,作为主基调搭配黄铜饰品的金属感,古堡灰大理石,跳跃零星几抹赭石色,给空间带来视觉上的层次感。开放对称的客厅空间借由艺术特质。
卧室
主卧室的床头背景为灰色硬包,以对称的方式做了两侧的白色护墙。软配中米白皮质轻奢床和床头柜,整个大面积还是以黑白为主,配以金属质感的材质,在整个空间中运用了墨绿色的布艺窗帘以及床头壁灯做整体颜色上的点缀,让整个空间的层次丰富起来。
餐厅
餐厅整个空间的色彩都以灰白为硬装上面的色调,在软装上选择了金属感的餐桌和边柜,古堡灰大理石的台面,给空间带来视觉上的层次感。
次卧
次卧室整体布艺材质墨绿色和灰色协调搭配,突出轻奢中的金属质感,让空间整体简单、舒适。
