美好时光105平现代轻奢
2020-04-11 15:55:56 查看人数 674
案例面积:105㎡
案例户型:其他室
装修造价:约25万
案例风格:轻奢
轻奢”,是一种优雅的生活态度,更是设计展现的一种高度,它饱含奢华的气质内涵,抛弃奢华的外在表现,并且使用轻度的体现方式,在优雅之上稍加金属修饰,便形成了自然而极致的居家风格。
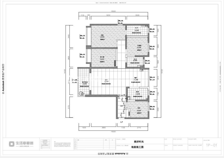
户型图
户型南北通透,整个房型区域比较规整,采光良好,没有浪费的空间,业主希望在设计时满足更多的功能需求
客厅
客厅整体的搭配看起来比较丰富,从硬装到家具到软饰都是以轻奢的方式去搭配,整体设计上空间的层次感很强,客厅采用了当下流行的无主灯设计,使得整个空间很大,家具的搭配跟地砖也是相呼应的。
卧室
卧室的衣柜是入墙式衣柜,整体看上去不那么繁琐,衣柜放一个梳妆台,平常可以在上化妆办公都可以床头的线性吊顶也不错,躺在床上看书的时候,也比较雅静,整体的设计偏向木色。
餐厅
餐厅区域不仅从储物还是就餐方面都很实用,设计成了卡座的形式,而且整体的搭配也不失格调。
玄关
玄关区域是一排通顶鞋柜,这个区域没有过多的装饰,很简单,从入户进来使得整个人尤为的清爽,业主那从外面忙了一天的心情也在那一瞬平静了下来
