正荣悦澜湾 78m² 现代简约风格
2020-04-29 10:19:18 查看人数 741
案例面积:78㎡
案例户型:三居室
装修造价:约16万
案例风格:现代
并且围朔出纯净自然的空间氛围,另外将黑色铁件点缀式加入空间之中,增加空间的立体层次, 其开放式的公共场域赋予空间流畅的动线,公共场域一轴线的设计除了延伸视觉还为业主打造一个阅读疗愈身心的小天地,此案简洁俐落的设计中,给予居住者更多名为「自由」的幻想国度的想像。
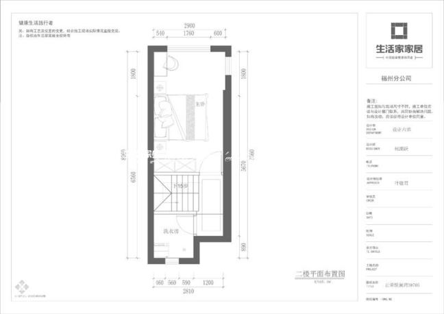
户型图
户型整体结构较好,南北通透利用率高主卧空间较大,客厅只有飘窗采光较差生活阳台较大。每个空间大大小小都有自己的采光来源整体采光较好主卧面积大有落地窗。
客厅
空间色彩以灰色为底蕴,包容着浅灰色瓷砖纹理、沉稳的清水模涂料相互作用于空间内,瓷砖纹路清浅带出自然质感,为全室以深灰色机调的空间添一分温柔感受,自然的中性色调使空间显得格外沉静,其家具物件选以黑蓝黄色彩搭配纯静简洁的空间,诠释出空间力求自然极简的调性。
餐厅
餐厅处没有过多的修饰采用了实用简约的餐边柜设计即美观又可以解决客户杂物较多无处放置的问题,餐厅采用了吊灯来照明也为就餐区带来了一丝温馨的气息。俐落的线条分割白色背墙柜体,为就餐区增添现清新细腻的氛围,在不受限的空间里以白色基调放大空间的宽敞及明亮感。
