融侨悦城 83m² 现代简约风格
2020-04-29 10:55:39 查看人数 665
案例面积:83㎡
案例户型:三居室
装修造价:约18万
案例风格:现代
灰色,是屋主对于空间的期待,团队巧妙的将它布局在空间的每个角落,当材质与光线的交织后,体现出色彩不同层次的氛围,最终色彩的语汇怡然地在空间中对话。
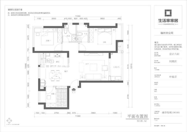
户型图
原结构的次卧空间较小,为了满足次卧使用需求,将原墙体拆除,将次卧设计为多功能房,使空间更加宽敞,使用功能齐全方便。户型方正,采光通风性好;原结构的卫生间无法满足到正常的使用需求,无需干湿分离。
客厅
客厅区域墙面使用石膏线作为装饰,搭配上简约的灰色饰面,运用艺术挂画做背景,使空间更加温馨,以灰色色漆做电视背景。再以深色沙发搭配色彩鲜明的抱枕,增加空间的色彩丰富感。搭配以温馨舒适的灯光,使空间更加具有简约现代风格的温馨感。我们通过采用大面积的落地窗,使得人与光线保持着恰到好处的美好距离,舒适曼妙又不过分炽烈。而在光影的调和下,家将自然与艺术、简约与精致这些丰富的要素糅合在一起,以一种轻盈、低调的姿态展现出来。
餐厅
餐厅区沿袭客厅的元素,让整个空间视觉统一协调。□在空间中穿插分子灯、纤细高腿家具,不同的材质在空间中穿插,增加了空间的层次感,让屋主在归家后能感受到简练线条带来的舒适享受。餐厅是以鱼肚白餐桌搭配上原木色椅子,使空间色彩更加鲜活,再以简约吊灯搭配温馨的灯光,使空间更加舒适宜居。并且满足客户需求,且不失时尚感。和客厅空间相呼应,更显得和谐,统一。
