金辉公园里 100平现代北欧
2020-06-10 14:29:47 查看人数 1050
案例面积:100㎡
案例户型:其他室
装修造价:约12万
案例风格:北欧
家是充满韵律的空间,应该让您享受到最大的舒适及放松;家应达到人与空间最大程度的和谐,并要在和谐中不时来一点起伏
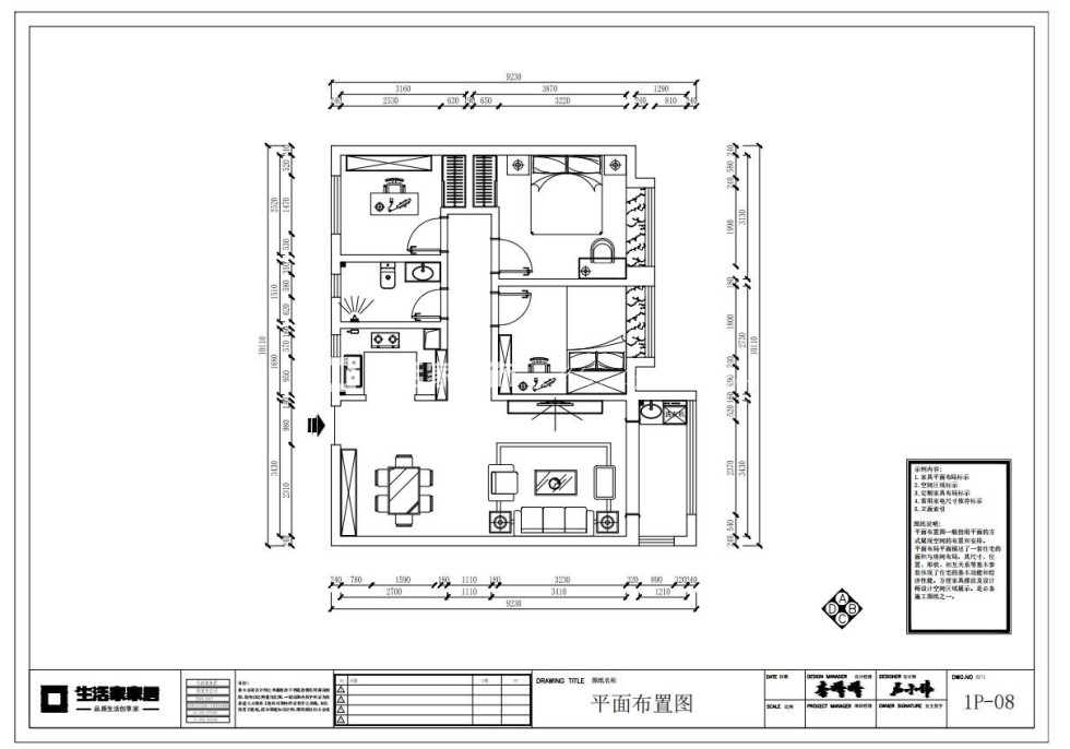
户型图
三房两厅两卫 建筑面积大约:100㎡ 户型各房间设计规范合理。南北通透,客餐厅开间3.6米,黄金进深和开间比例,有利于客餐厅内部的布置。客厅外带有阳台,主次卧朝南,采光较好,门和窗的位置也合理。
客厅
客厅的设计力求沉稳大气,以现代人的审美需求来打造富有传统韵味的细节,彰显出北欧的格调,全房采用调色乳胶漆处理,电视背景做通顶储物空间,采用鱼肚白石材和黑白根石材相结合,去掉传统电视柜,凸显主墙面的沉稳大气,客厅采用无主灯设计,整体简洁大方。
卧室
主卧以现代人的审美需求来打造富有传统韵味的细节,顶面双层石膏板线条线条处理,解决传统空调出风口和角线问题,卧室做窗帘盒处理,使顶面线条更加完整,床头考虑吊线灯,凸显主空间的沉稳大气,床头采用调色乳胶漆处理,重新诠释北欧风格。
餐厅
餐厅原有空间没做大的调整,过道的墙体做了重新规划利用,做了一组柜子,增加储物空间,原本房子的储物空间就比较少。考虑采用风管机,避免了传统柜机占用客厅空间,出风效果不理想。厨房不考虑门,做半开放式设计,规划了一组小柜子,方便日常使用。整体简洁大方,空间通透敞亮。
