中海悦墅 260平现代轻奢
2020-06-10 14:39:18 查看人数 1076
案例面积:260㎡
案例户型:其他室
装修造价:约25万
案例风格:现代
设计是把复杂变成简单,把不合理变成合理,把普通平凡变成伟大,室内设计一定要用心去接触.
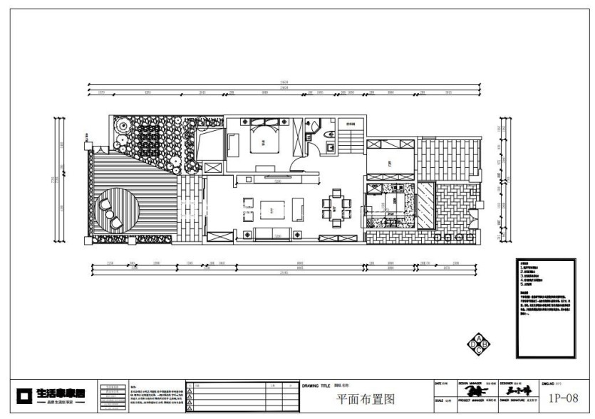
户型图
四房三厅三卫 建筑面积大约:260㎡ 户型各房间设计规范合理。南北通透,客餐厅开间4.1米,黄金进深和开间比例,有利于客餐厅内部的布置。客餐厅都外带有阳台,主次卧朝南,采光较好,门和窗的位置也合理。主卧门正对过道,采用整体全屋定制,床、衣柜、书桌、书柜一应俱全。
客厅
客厅的设计力求沉稳大气,以现代人的审美需求来打造富有传统韵味的细节,彰显出现代轻奢的格调,电视背景采用石材和定制结合,满足客厅储物的同时凸显主墙面的沉稳大气,去掉传统电视柜,采用意大利灰石材通体定做。不锈钢线条点缀,顶面不锈钢线条点缀处理,配上现代吊灯重新诠释定义了轻奢风格。
卧室
主卧以现代人的审美需求来打造富有传统韵味的细节,彰显出现代轻奢的格调,顶面双层石膏板线条线条处理,解决传统空调出风口和角线问题,卧室做窗帘盒处理,使顶面线条更加完整,床头采用挂板和壁布的结合,局部不锈钢线条点缀收口,凸显主空间的沉稳大气,配上实木地板,重新诠释轻奢风格。
餐厅
餐厅原有空间做就大的调整,扩大厨房门,考虑中西厨设计,增加餐厅采光,满足客户对光线的需求,结合原有空间顶面结构做顶面吊顶设计,金色不锈钢线条点缀,餐边柜做整体定制,考虑玻璃柜门,方便后期使用,满足储藏需求。过道地面做波导线,划分客餐厅区域,整体简洁大方,空间通透敞亮。
衣帽间
衣帽间以满足客户储物需求来打造,通顶的规划设计增加储物的同时顶面不用打理,采用通顶的玻璃门设计,隔灰尘的同时又方便女业主找到自己想要的衣物,柜体内考虑嵌入光源,见光不见灯,方便使用同时体现高级感。
书房
茶室要求简约而不简单,不想像传统茶室太沉闷繁琐,结合客户需求考虑整体定制,满足所有储物及展示的需求,地面采用双边波打线设计,和顶面吊顶结合呼应,阳台天井考虑绿植,点缀空间的同时陶冶情操。
