25W打造中庚香开长龙 92m² 新中式风格
2020-06-30 17:15:27 查看人数 1070
案例面积:92㎡
案例户型:三居室
装修造价:约25万
案例风格:新中式
新中式风格:于我们而言,时间的消亡意味着陪伴的逝去,寻一个舒适、简约的空间共享天伦,是一件很必要的事情。于父母而言,过了喜爱繁花似锦的年岁,冷清的空间又尤显得寂寥。几经商榷,业主与设计师定下了新中式的设计风格。
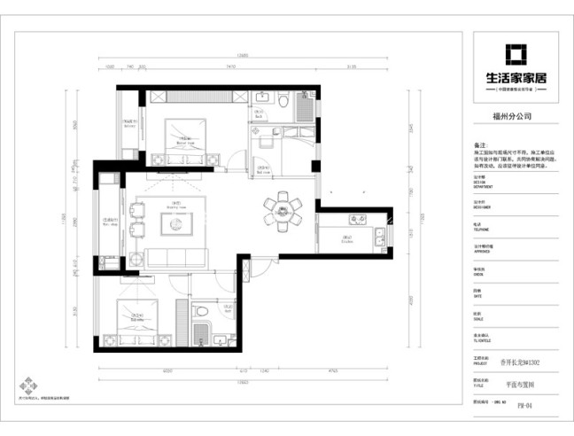
户型图
整个空间南北通透,客厅落地窗采光足,有利于居住空间通风 利用空间做了三个卧室,其中一个次卧可作为客卧来使用 超大面宽短进深,功能齐全 户型整体比较方正,便于室内家具的布置 生活动静分明,便于后期生活,兼顾到了卧室与卫生间的私密性
客厅
客厅是家人活动最多的地方,考虑到空间的通透性与长辈行动的便捷性,设计师将客厅与餐厅相连通,在互不影响功能区的同时,在视觉上扩大了客厅的空间面积。 在色彩方面,客厅背景墙用素色的水墨画大面积覆盖,电视背景墙用另外白色大面积的使用,也增加了客厅的亮度,让客厅给人感觉更加的明亮,而减少了传统中式装修中给人过于沉闷的感觉。布局上采用了对称手法,以客厅中央的茶几为中轴线,两边呈现对称布局,这种对称美让空间给人感觉更加的严谨。
卧室
卧室选用灰和白作为主色系,沉稳内敛,床头背景墙选用客厅同风格的山水画,采用灰色系作为背景,空间风格统一,浅灰色的水墨画墙板让空间显得稳重,床头背景设计,上面是硬包定制壁画,下面是皮质软包不锈钢收口,同时嵌入有线条灯,作为氛围灯使用。细节处又有着简洁硬朗的木线条装饰,凸显着中式风格的雅致大气,配以精致的饰品装饰,空间风格统一,给人一种宁静致远的感觉,让人放下身心享受生活的慢节奏,是理想的休憩之所。将东方意美与人文内涵兼收糅合。
餐厅
餐厅选用最简单的吊顶与客厅相连,铝合金线条作为装饰边,搭配木质布艺灯具,线条感强烈,符合中式方正中庸的气质,也不失现代线条的简约,圆餐桌在新中式中很常见,大理石桌面加上铝合金,6人位餐桌,餐桌采用细木条的餐桌椅家具,中式韵味十足却不会有厚重之感,餐椅水墨画与客厅沙发背景墙墙相呼应。
