38W打造三盛滨江国际190m²复式 中式风格
2020-07-28 15:54:41 查看人数 688
案例面积:190㎡
案例户型:其他室
装修造价:约38万
案例风格:中式
方案设计风格为现代风格,整体空间白色与灰色主色。阴阳协调,留白布局,颜色的跳跃,让人眼前一亮,提高整体的休憩质量。
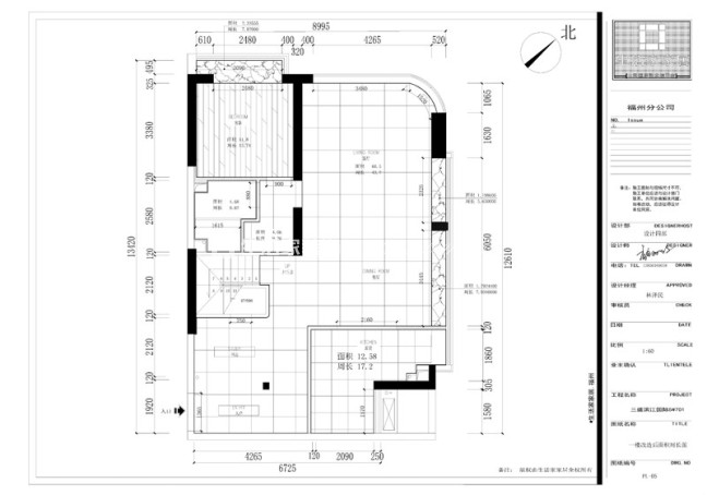
户型图
三室两厅户型方正且紧凑,无较多浪费的空间、功能分布位置合理。大面积的客厅增加业主的舒适度,加上大面积的落地窗增加室内的采光通风效果,一线江景,利用采光区域设计,增加空间的利用率。在玄关客厅电视背景及沙发背景造型都沿用徽派风格的屋檐青砖白瓦的点缀。厨房采用拱门敞开,餐厅与客厅相邻,空间分明,整体无尚奢华。客厅餐厅,空间的通风效果较好自在心情无障碍地穿行,悠然自得。二楼卧室休闲区较为远离客厅,有休憩具有的良好的环境。周围环境安静,绿化好,适合居住。
客厅
运用白色为主调,灰色和浅灰色副调,背景墙有白色及屋檐造型,也有利用黑钛做墙上造型,最后给人的感觉是干净大方。简单的电视背景墙增加了储物及展示功能,可以合理利用空间。
餐厅
与厨房相隔较近,拥有更舒适的就餐环境。临近客厅,通行方便,过道预留酒柜,增加业主的生活质量。采用的是半敞开式,U型的橱柜利用空间更大,更符合业主的需求,厨房的空间是相对偏大的,所以在空间设计中,也合理利用空间,具有很大储物空间。
